全国服务热线:
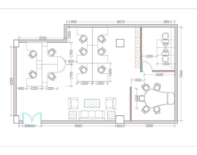
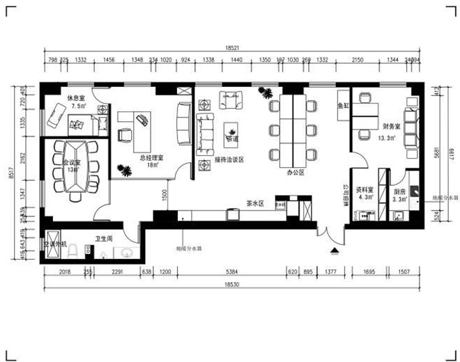
13814889108随着现代化企业的不断发展与壮大,办公室已经成为企业的管理服务机构,办公室装修也就必不可少,在实施装修之前第一步就是设计好装修图纸、 办公室装修平面图,下面就由苏州办公室装修小编带大家来看看,以下办公室装修平面图仅供参考。



全国服务热线:
13814889108随着现代化企业的不断发展与壮大,办公室已经成为企业的管理服务机构,办公室装修也就必不可少,在实施装修之前第一步就是设计好装修图纸、 办公室装修平面图,下面就由苏州办公室装修小编带大家来看看,以下办公室装修平面图仅供参考。


